Apartament 123m² na Wilanowie | 2 ogrody

Mieszkanie na sprzedaż
2 499 999,00 PLN, Pow. 122,69 m2
Drukuj ofertę
Drukuj ofertę
Typ nieruchomości:
Mieszkanie
Powierzchnia:
122,69 m2
Typ transakcji:
sprzedaż
Liczba pokoi:
4
Lokalizacja:
Warszawa Wilanów , Adama Branickiego
Rok budowy:
2011
Piętro:
0 na 4
Numer oferty:
34964543499
Cena za m2:
20 376,55 PLN
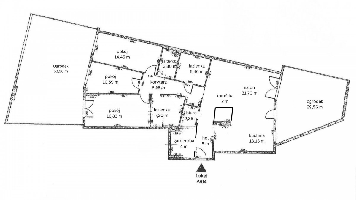
Na sprzedaż przestronne, czteropokojowe mieszkanie położone w cenionej części Wilanowa, idealne dla osób ceniących komfort, prywatność oraz dostęp do zieleni.

W mieszkaniu wyraźnie wydzielono komfortową strefę dzienną, obejmującą przestronny salon z kuchnią oraz gabinet, idealny do pracy lub jako dodatkowy pokój. Część prywatna, stanowiąca strefę wieczorną, składa się z trzech ustawnych sypialni, zapewniających wygodę wszystkim domownikom.

Do dyspozycji są również dwie łazienki, jedna wyposażona w wannę, druga w prysznic, co znacząco podnosi funkcjonalność mieszkania. Dodatkowym atutem są dwie garderoby, które zapewniają dużą ilość praktycznej przestrzeni do przechowywania i pomagają utrzymać porządek.

Lokal znajduje się na parterze i posiada dwa prywatne ogródki obrośnięte roślinnością, które stanowią naturalne przedłużenie strefy dziennej i zapewniają dodatkową przestrzeń do wypoczynku.

Wnętrze jest jasne i bardzo dobrze doświetlone dzięki dużym oknom oraz ponadstandardowej wysokości pomieszczeń wynoszącej 2,75 m, co dodatkowo potęguje poczucie przestrzeni. 

Pomimo lokalizacji na parterze zachowano wysoki poziom prywatności dzięki zastosowaniu okien weneckich od strony patio oraz automatycznych rolet zewnętrznych. Lokal jest w bardzo dobrym stanie technicznym, wyposażony w nowoczesny sprzęt AGD i gotowy do wprowadzenia, wymaga jedynie odświeżenia ścian zgodnie z preferencjami nowego właściciela.

Dodatkowym atutem jest komórka o powierzchni ok. 2 m², zapewniająca wygodne miejsce do przechowywania.

Do mieszkania przynależą dwa niezależne miejsca parkingowe w garażu podziemnym (dodatkowo płatne 100000 zł) nie na platformie, co znacząco podnosi komfort codziennego użytkowania.

Nieruchomość położona jest w nowoczesnym, zadbanym budynku w jednej z najbardziej pożądanych lokalizacji Wilanowa, w pobliżu terenów zielonych, infrastruktury handlowo usługowej, restauracji oraz renomowanych placówek edukacyjnych.

To idealna propozycja dla rodzin, par oraz osób poszukujących komfortowego mieszkania z prywatną przestrzenią zewnętrzną w prestiżowej części miasta.

Nieprawidłowy adres E-mail